Kantoor Lagedijk 31F te Helmond

Over dit pand

Te huur

Kantoor gelegen aan de Lagedijk 31F te Helmond

Object

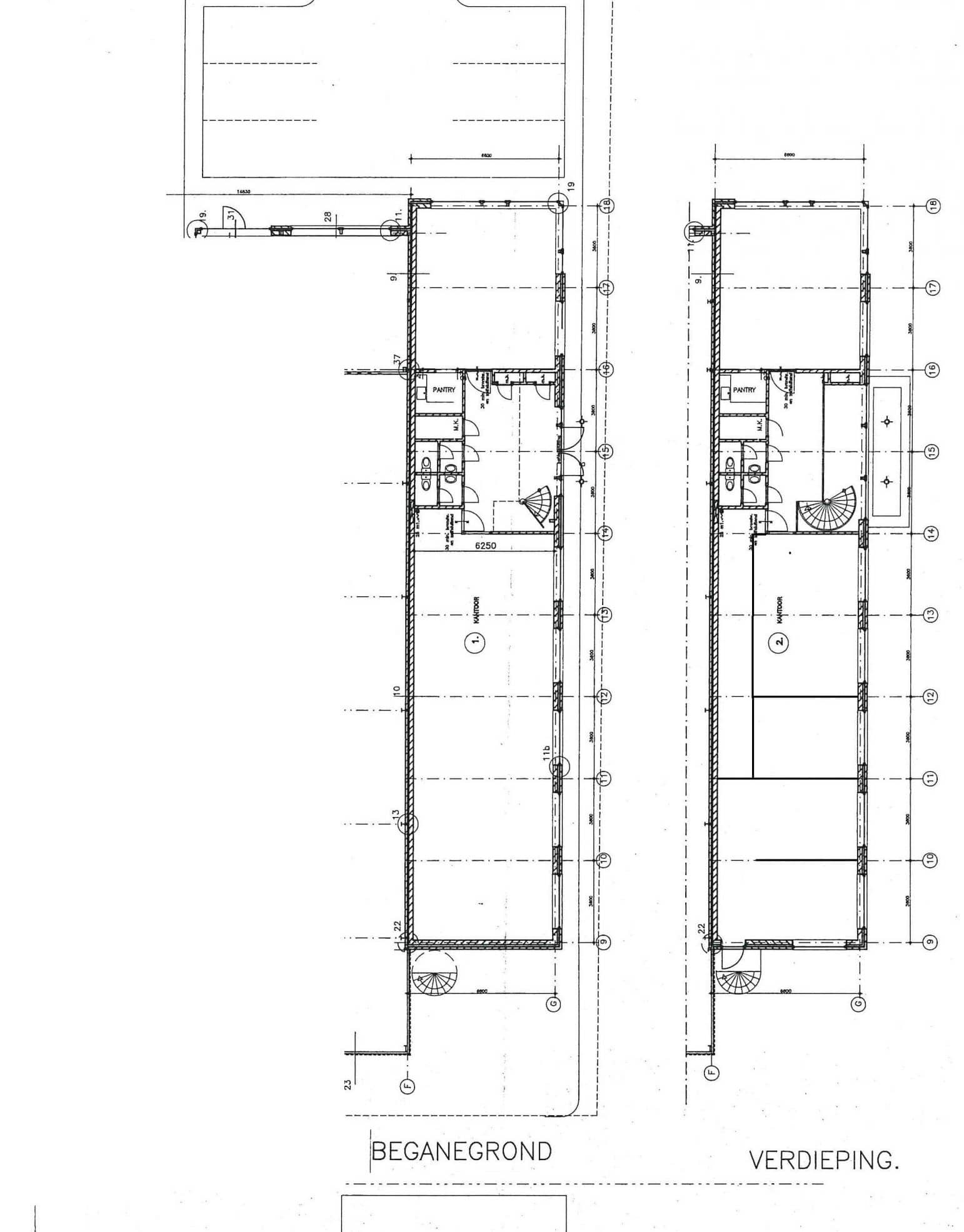
De voor verhuur beschikbare ruimte is een kantoor van ca. 390m2 waarvan ca. 195m2 op de begane grond en 195m2 op de 1e verdieping.

Ligging

Het kantoor is gelegen aan de Lagedijk is goed gelegen op het grootschalige bedrijventerrein “Hoogeind” ten zuidoosten van de binnenstad van Helmond. Het bedrijventerrein kenmerkt zich als een gemengd bedrijventerrein met meer dan 400 gevestigde bedrijven en met een totale omvang van 295 hectare is het een van de grootste terreinen in de omgeving.

Bereikbaarheid

Het kantoor is goed bereikbaar en ligt nabij één van de hoofduitvalwegen van het bedrijventerrein ‘Hoogeind’. Van hieruit is er een goede verbinding naar de A67 Eindhoven – Helmond – Venray.
De voor huur beschikbare ruimte ligt aan een gezamenlijk bedrijventerrein geschikt met gedeelde parkeerplaatsen t.b.v. personenauto’s.

Voorzieningen
Alarminstallatie
Led-verlichting
Verwarmingsinstallatie
Toiletten per laag
Douche aanwezig
Elektrische zonwering
Airco-units
Pantry per laag aanwezig
Voldoende parkeermogelijkheden op eigen terrein
Gezamenlijke toegangspoort bedrijventerrein

Bijzonderheden
In overleg gedeeltelijke verhuur bespreekbaar.

Details

A
Kantoor van ca. 390m2 verdeeld over twee lagen
390m2
Op aanvraag
Verwachting Q3 2023
A
Kantoor van ca. 390m2 verdeeld over twee lagen
Op aanvraag
Verwachting Q3 2023